This page shows early concept plans that prioritise public and cultural use, with only a small portion set aside for council services and office space.

On this page
Layout diagram
Diagram shows proportion of each space

Architectural concept floorplans

To help show how different spaces are used, the plans below are colour coded as follows: 

🔵 Blue: Advice and Support Hub 
🟣 Purple: Operational areas such as backstage, changing rooms, technical rooms, stores and kitchen 
🟢 Green: Public areas including the library, café, theatre, studio, meeting spaces and courtyard 
🟡 Yellow: Council offices 

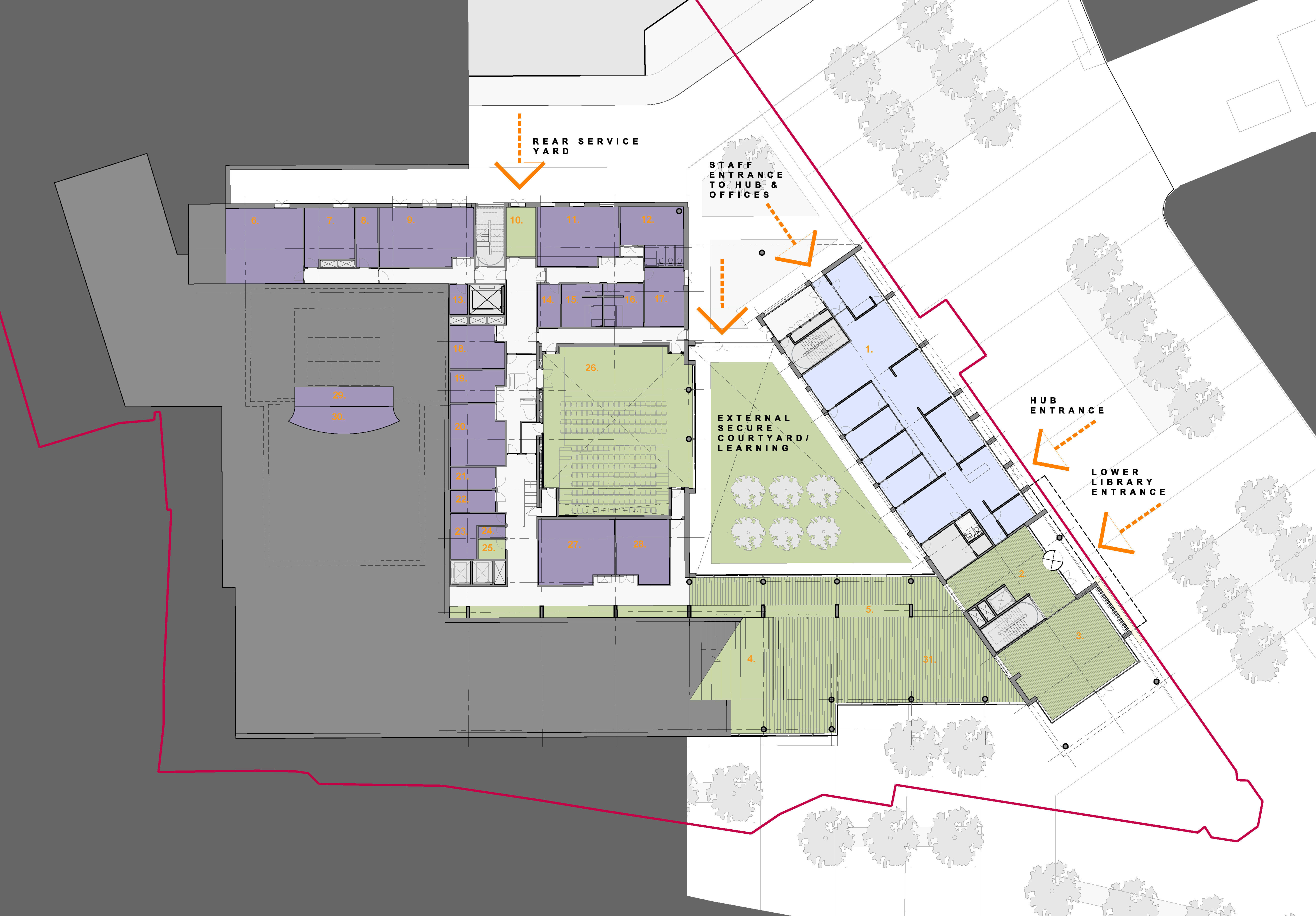
Lower ground floor

You can use your mouse (scroll wheel/click to drag), screen (tap/pinch) or keyboard (arrows and plus/minus keys) to interact with this image:

Lower ground floor

Lower ground floor key legend

  1. Hub
  2. Entrance Lobby
  3. Retail Space
  4. Feature Stair
  5. Feature Spine Wall
  6. Water Services
  7. LV Switch Room
  8. Theatre Electrics
  9. Building Refuse
  10. Stage Door
  11. Green Room / Kitchen
  12. Group Change
  13. Store
  14. Studio Prod. Office
  15. Change 1
  16. Change 2
  17. Cycle Store / Welfare
  1. Bar Storage
  2. Council Desk Storage
  3. Library Store
  4. Ice Creams
  5. House Keeping
  6. User Change
  7. Cleaners Cupboard
  8. Accessible WC
  9. Studio Theatre
  10. Central Store
  11. Studio Theatre Store
  12. Seating Storage
  13. Orchestra Pit
  14. Library / Event Space

Ground floor

You can use your mouse (scroll wheel/click to drag), screen (tap/pinch) or keyboard (arrows and plus/minus keys) to interact with this image:

Ground floor

Ground floor key legend

  1. Foyer & Library
  2. Bar Cafe & Servery
  3. Feature Stair
  4. Feature Spine Wall
  5. Breakout Area
  6. Junior Library
  7. Loading Bay
  8. Auditorium & Stalls
  9. Audio Describer
  10. Control Room
  11. Latecomer
  12. Orchestra Store
  13. Manager Office
  14. Touring Box Storage
  15. Drapes and Props
  16. Shared Workshop
  17. Crew & Tech Office
  1. Accessible Change
  2. Studio Change
  3. Dance Studio
  4. Studio Store
  5. WC
  6. Kitchen
  7. WC Core
  8. Studio Theatre Upper
  9. SL Dimmers
  10. Control Room
  11. AV Racks
  12. Foyer Reception
  13. Support Hub
  14. Office 01
  15. Office 02
  16. Office 03
  17. Lobby

Upper floor

You can use your mouse (scroll wheel/click to drag), screen (tap/pinch) or keyboard (arrows and plus/minus keys) to interact with this image:

Upper floor

Upper floor key legend

  1. Upper Foyer & Library
  2. Studio - Creative
  3. Studio - Shared
  4. Library IT Suite
  5. Reading / Meeting
  6. Auditorium Circle
  7. Technical Access
  8. Technical Store
  9. Technical Access
  10. Technical Store
  11. Troup Change
  12. Dressing Room 01
  13. Dressing Room 02
  14. Dressing Room 03
  15. Dressing Room 04
  16. Costume Maintenance
  17. Arts Centre Staff BoH
  1. WC
  2. Library Support
  3. WC Block
  4. Arts Centre Staff FoH
  5. Office 01
  6. Office 02
  7. Lobby
  8. Office / Meeting 01
  9. Office / Meeting 02
  10. Office / Meeting 03
  11. Office / Meeting 04